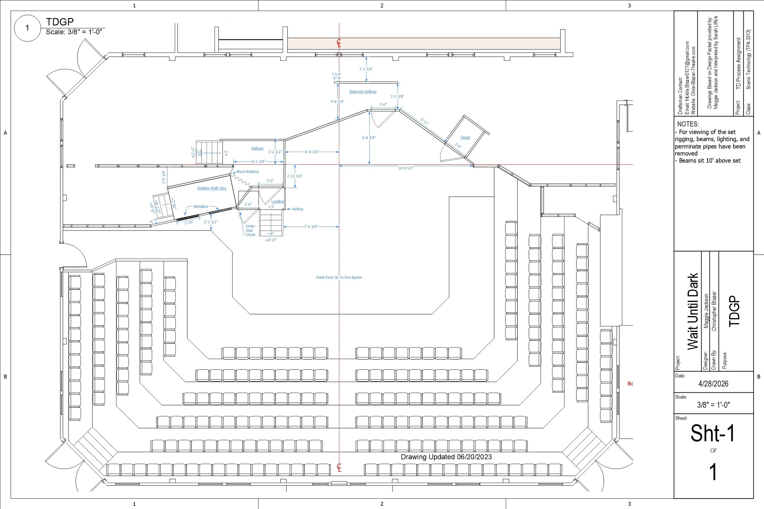
Wait Until Dark

Scenic Technology Class

Role: Hypothetical TD

Scenic Designer: Maggie Jackson (Provided Design Packet)

Professor: Sarah Liffick

This was a hypothetical TD process for my Scenic Technology (TPA 3313) class.

Project assignment: Using the provided design packet from Courtland Repertory Theatre’s production of Wait Until Dark, create a TD ground plan on Courtland Rep’s stage, preliminary paper drawings, and a preliminary budget.

Sarah Liffick served as the hypothetical scenic designer and production manager, answering questions and providing feedback.

TDGP

Preliminary Hand Drafting

Preliminary Budget

Previous
Previous

Stop Kiss (ATD)

Next
Next

Jesus Christ Superstar (Lead Carp.)