Furniture Drafting

Vectorworks II Class

Role: Draftsman

Furniture Designer: Thos. Moser/ The Thos. Moser Cabinetmakers Company

Professor: Connie Smith

This is a collection of furniture drafting done by me as a project for my Vectorworks II class.

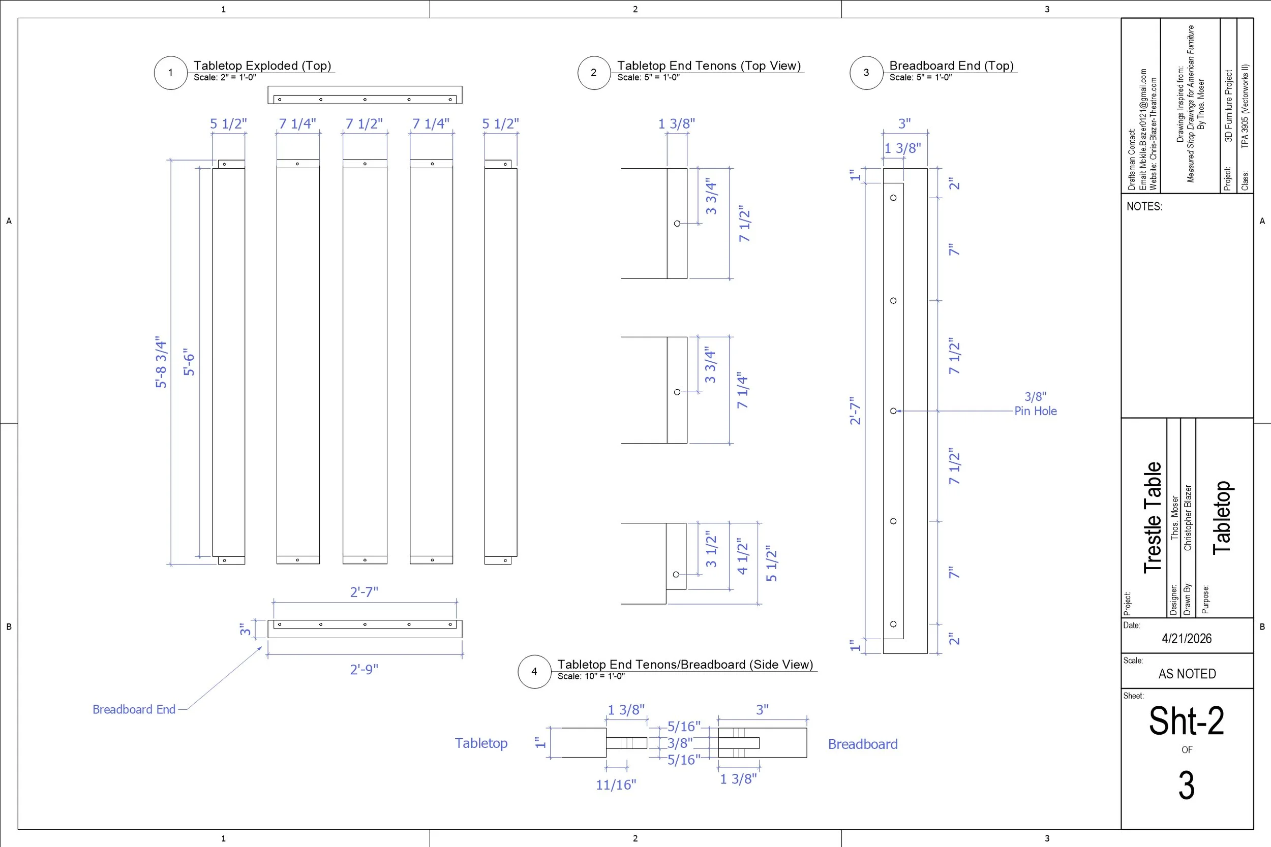
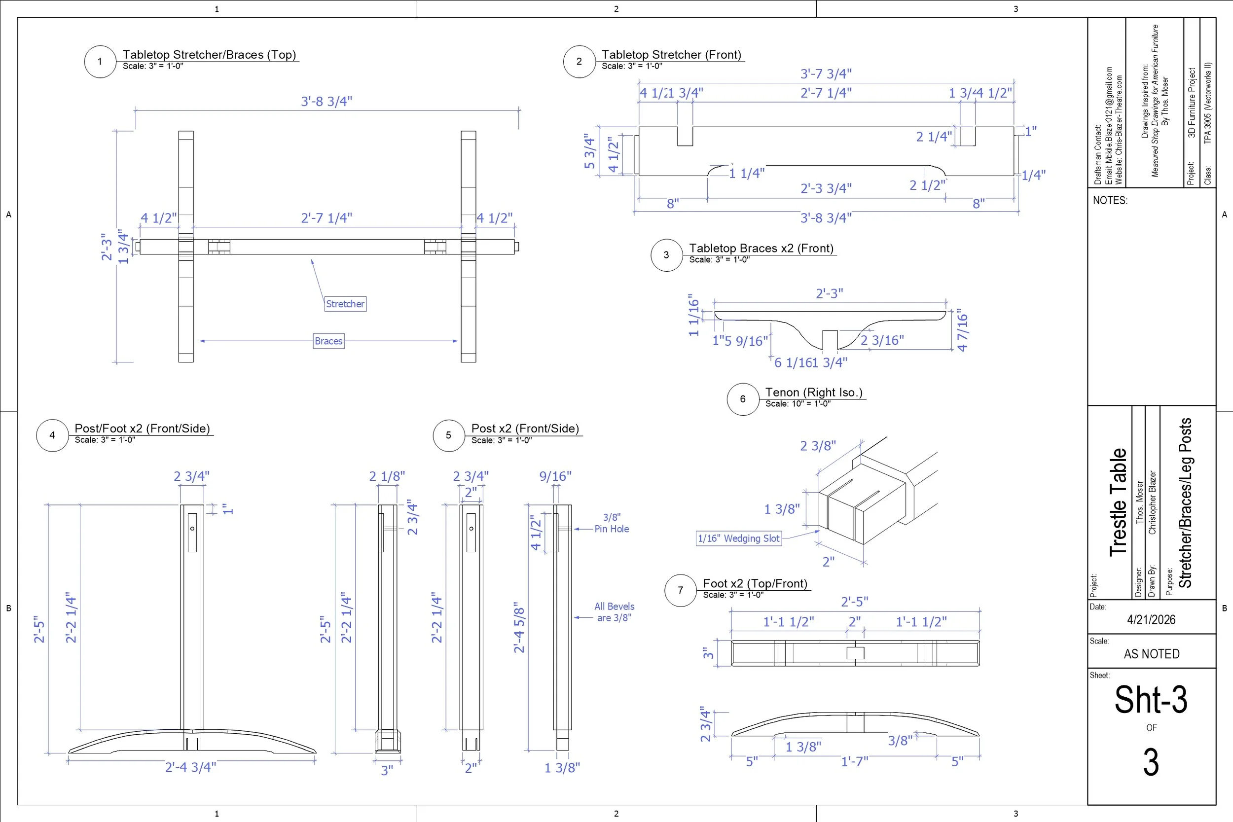
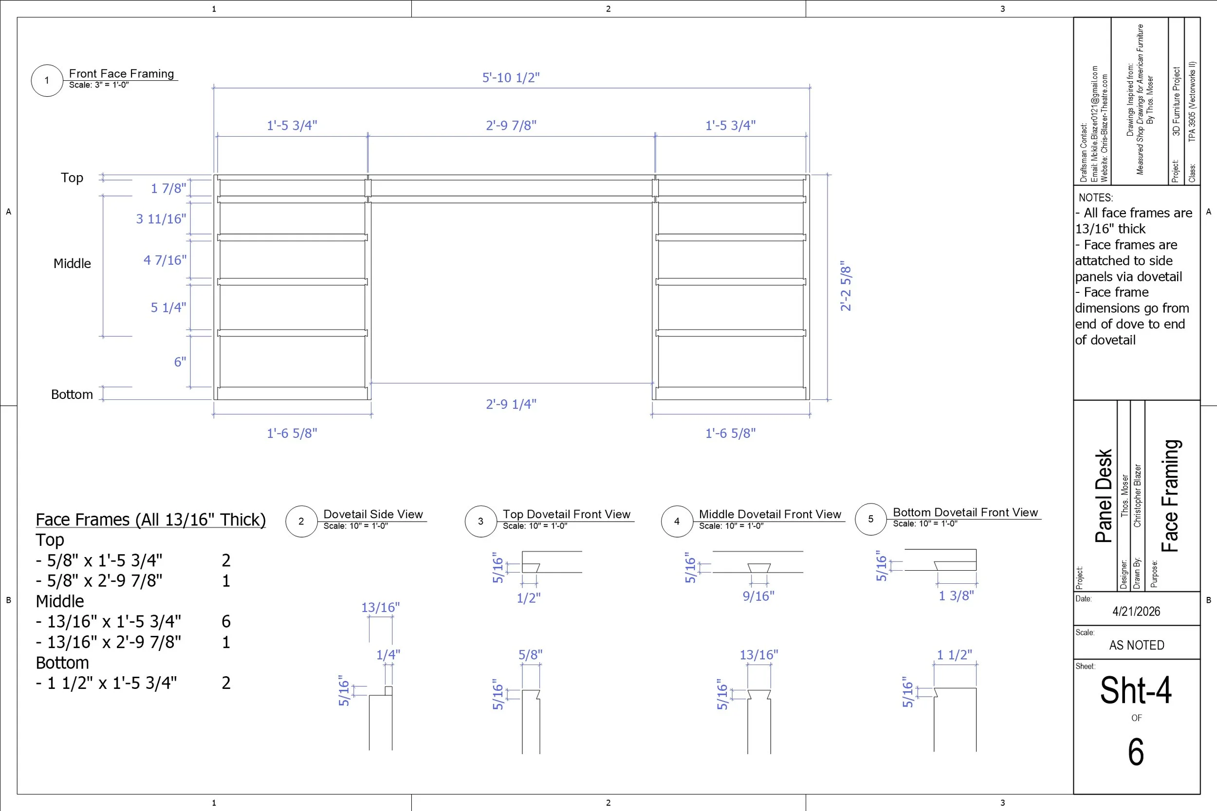
Project assignment: Using the drawings from a furniture book of your choosing, pick six pieces that you will make in Vectorworks 3D, accurate to real fine carpentry techniques. Then, plate these to best communicate how these pieces are built using fine carpentry techniques.

Special thanks to Thos. Moser and the rest of his team, who worked to design these pieces and publish them for me to then use (Measured Shop Drawings for American Furniture). Further thanks to the one doing the line drawings in the book, Craig Howard, whose drawing I painstakingly examined.

Plates

Previous
Previous

Fiddler on The Roof (Lead Carp.)

Next
Next

Oklahoma! (Carp.)